賃貸情報 (アパート・マンション・貸家)
588件中33件該当しました。 1件〜20件の表示
H27水廻りリフォーム済 

名 称
藤荘 3号 5号
所在地
山形県鶴岡市千石町
間取り
2K(和6、和6、K)
賃 料
35,000円登録No.dfa10070
詳細
平成20年リフォーム済 

名 称
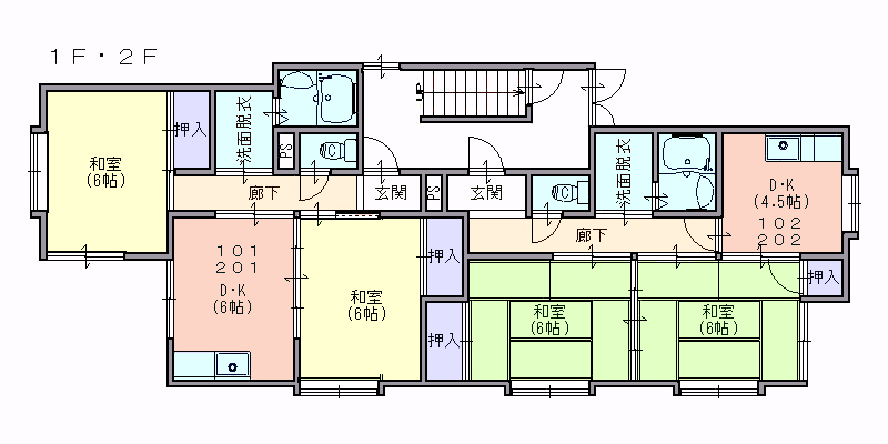
大森第一マンション 101 202 203
所在地
山形県鶴岡市東原町
間取り
2DK(【1F】洋6、和6、DK8 【2F】洋6、和4.5、DK8)
賃 料
35,000円登録No.dfa10071
詳細
2DKメゾネットタイプ 

名 称
昭和ハイツ 101、102
所在地
山形県鶴岡市昭和町
間取り
2DK(洋7、和6、DK7.5)
賃 料
48,000円登録No.dfa10075
詳細
メゾネットタイプ 

名 称
ハイツ鶴東U B(11/2退)
所在地
山形県鶴岡市伊勢原町
間取り
2LDK(洋6、洋6、LDK9.5)
賃 料
54,000円登録No.dfa10078
詳細
明るく綺麗な物件です 

名 称
ハイツクリアネス 1-A
所在地
山形県鶴岡市西茅原町
間取り
2DK(洋6、洋6、DK)
賃 料
43,000円登録No.dfa10081
詳細
Wi-Fi無料物件 

名 称
ヴィクトリーフラッグ 103、105、106、203、205
所在地
山形県鶴岡市茅原町
間取り
2K(洋8、洋6、K)
賃 料
49,000円登録No.dfa10082
詳細
インターネット無料、防犯カメラ完備、近隣商業施設!三川・酒田方面へもアクセス良! 

名 称
ドーエル152 201
所在地
山形県鶴岡市余慶町
間取り
2DK(備考欄参照)
賃 料
49,000円登録No.dfa10083
詳細
山王町商店街すぐ近く。まちキネまで徒歩1分。ペット可。 

名 称
バナナハウス 101(11/13退)
所在地
山形県鶴岡市山王町
間取り
2DK(洋6、洋6、DK)
賃 料
47,000円登録No.dfa10086
詳細
陽当たり良好ゆったり2DK 

名 称
プラムカーサ 203
所在地
山形県鶴岡市西茅原町
間取り
2DK(洋6、洋6、DK)
賃 料
48,000円登録No.dfa10093
詳細
人気の都市ガス&対面キッチン!ゆったりとした2LDKでおススメ物件です 

名 称
コーポ金峰 1-B、1-C
所在地
山形県鶴岡市美原町
間取り
2LDK(6、6、LDK11.3(6帖間は部屋によって和か洋か異なります))
賃 料
39,000円登録No.dfa10096
詳細
通学・お買い物に便利 

名 称
ラ・モードF 103
所在地
山形県鶴岡市稲生1丁目
間取り
2K(洋6、和6、K)
賃 料
45,000円登録No.dfa10099
詳細
リーズナブルな2K! 

名 称
観光荘 2号 5号 6号 7号
所在地
山形県鶴岡市宝町
間取り
2K(和6、和4.5、K)
賃 料
33,000円登録No.dfa10100
詳細
閑静な住宅地 安らぎの和室2間 

名 称
冨樫アパート 要確認
所在地
山形県鶴岡市大宝寺町
間取り
2K(和6、和6、K)
賃 料
32,000円登録No.dfa10101
詳細
鶴岡駅近く メゾネットタイプ 

名 称
オレンジハウス登美丘 1号室
所在地
山形県鶴岡市大宝寺町
間取り
2LDK(LDK11.1 洋7、和6.75 )
賃 料
65,000円登録No.dfa10102
詳細
旧7号線沿いでお買い物便利!人気のメゾネットタイプ 

名 称
インターホーム 201、203、211、203、215、217
所在地
山形県鶴岡市西新斎町
間取り
2DK(洋6.7、和6、DK)
賃 料
48,000円〜50,000円登録No.dfa10106
詳細
人気の対面型キッチン!2LDKメゾネットタイプ 

名 称
プログレスハイツ 103
所在地
山形県鶴岡市道形町
間取り
2LDK(洋6、洋6、LDK)
賃 料
60,000円登録No.dfa10111
詳細
静かな住宅地、メゾネットタイプだから、夜間の足音など気にせず暮らせる快適空間 

名 称
WEST21 D
所在地
山形県鶴岡市小淀川字谷地田
間取り
2LDK(洋8、洋6、LDK10.7)
賃 料
56,000円登録No.dfa10119
詳細
ゆったり2DK 駐車場1台 

名 称
大部ハイツ 102
所在地
山形県鶴岡市大部町
間取り
2DK(DK 洋室6帖 和室6帖)
賃 料
41,000円登録No.dfa10214
詳細
鶴岡市内、羽黒町、庄内町へもアクセス良! 

名 称
上藤島アパート 3号、5号
所在地
山形県鶴岡市上藤島字村西
間取り
2DK(和6、和6、DK)
賃 料
45,000円登録No.dfa10232
詳細
日当たりの良いキッチンダイニング 

名 称
ヘルシイハウス 202
所在地
山形県鶴岡市茅原町12-19-3
間取り
2DK(6帖・6帖(和室)・台所)
賃 料
40,000円〜43,000円登録No.dfa10241
詳細
前のページへ戻る
- 間取り・写真は現況優先です。部屋の配置により多少異なる場合がございますので予めご了承下さい。
- 更新と同時に良い物件から成約となる場合がございますので、お早めにお問い合わせください。
- 当サイトでは掲載情報に厳重なチェックを心がけていますが、万が一記載ミスが生じた場合は予めご容赦下さい。
- 詳細につきましてご不明な点がございましたら、お気軽に電話かメールにてお問合せ下さい。